pregled nekretnine ID: 365543
izdavanje

118m² 1.400€
Beograd, Vračar, Crveni krst, Cerska

Objavljen: 19.12.2025. / Izmenjen: 19.12.2025.


Tip: poslovni prostor

Cena: 1400.00 EUR

Površina: 118.00 m2

Grad: Beograd

Opština: Vračar

Deo: Crveni krst

Ulica: Cerska

Prijavi problem  |  Pošalji na e-mail


Kontakt:

Moj Kvadrat doo

011/334 88 36

065/303 94 39

http://www.kvadratnekretnine.com

Opis:

  • Centralno grejanje
  • Kanalizacija

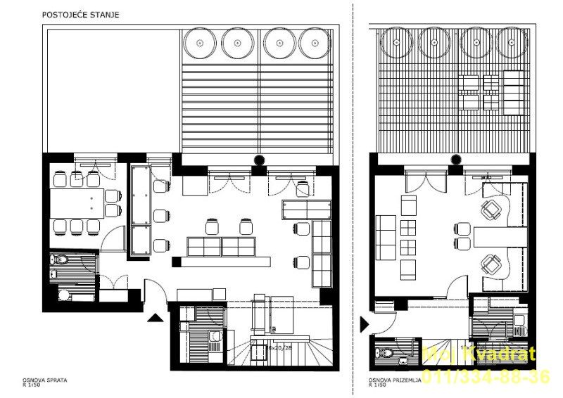
Vračar, Crveni krst - Cerska

PP, 118m2, VPR+1, CG

Izdaje se poslovni prostor na dva nivoa (visoko prizemlje i prvi sprat).

Visoko prizemlje: jedna prostorija, kuhinja, kupatilo.
Prvi sprat: kuhinja, kupatilo, jedna manja i jedna veća prostorija.

Agencijska provizija po opštim uslovima poslovanja.






0/1000