pregled nekretnine ID: 369383
izdavanje
87m² 1.000€
Beograd, Zvezdara, Vukov spomenik, Milana Vukosa
Objavljen: 28.04.2026. / Izmenjen:
28.04.2026.
Tip: stan
Cena: 1000.00 EUR
Površina: 87.00 m2
Grad: Beograd
Opština: Zvezdara
Deo: Vukov spomenik
Ulica: Milana Vukosa
Sprat: 3
Spratnost: 3
Soba: 3
Godina izgradnje: 2021
Opis:
- Useljivo
- Lift
- Parking
- Kanalizacija
- Terasa
- Interfon
Zvezdara, Slavujev venac - Milana Vukosa
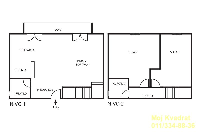
3.0, 87m2 (terasa 8m2), 3/3, EG, lift, interfon, garaže
U ponudi namešten dupleks, u novogradnji! Nalazi se u odlično projektovanoj zgradi, prvoklasan kvalitet gradnje.
Prvi nivo (50m2) se sastoji od predsoblja, dnevnog boravka povezanog sa kuhinjom i izlazom na terasu od 8m2 i kupatila. Gornji nivo - potkrovlje (36,5m2) ima predsoblje, dve spavaće sobe i kupatilo.
Postoji mogućnost zakupa dva garažna mesta. Obavezan depozit u visini jedne mesečne zakupnine!
Useljiv od 01.06.2026. godine.
Agencijska provizija u skladu sa Opštim uslovima poslovanja.