pregled nekretnine ID: 367830
prodaja

250m² 420.000€
Beograd, Voždovac, Braće Jerković, Milovana Jankovića

Objavljen: 09.03.2026. / Izmenjen: 09.03.2026.


Tip: kuća

Cena: 420000.00 EUR

Površina: 250.00 m2

Grad: Beograd

Opština: Voždovac

Deo: Braće Jerković

Ulica: Milovana Jankovića

Prijavi problem  |  Pošalji na e-mail


Kontakt:

Moj Kvadrat doo

011/334 88 36

065/303 94 39

http://www.kvadratnekretnine.com

Opis:

  • Uknjiženo
  • Parking
  • Kanalizacija
  • Terasa
  • Interfon

Voždovac, Braće Jerković - Milovana Jankovića

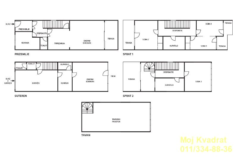
kuća, 250m2 (terase i lođa 36m2 + garaža 18m2), NPR+VPR+I+II+PTK, EG/GAS, interfon, parking, garaža, struja, voda, kanalizacija, asfalt, plac 1.5 ari

U neposrednoj blizini TC Stadion, u oazi zelenila, mira i tišine u ponudi je vertikala kuće (kuće u nizu-"generalice"), lamela sa fasadnom crvenom ciglom, parking mestom ispod garaže, garaža, dva nezavisna ulaza u objekat i pripadajućim dvorištem od 1.5 ar.

Sastoji se od pet etaža:
NPR - garaža (uknjižena 18m2), parking mesto, garsonjera (18m2 koja nije ušla u knjižni deo kvadrature ali je izvorno deo kuće, poseduje zaseban ulaz iz dvorišta i moguće je izdavati kao poseban prostor), ostava sa kotlarnicom i izlaz na dvorište;
VPR - ulazni deo kuhinja, trpezarija, dnevna soba, kupatilo i lođa (oko 10m2);
I sprat - tri spavaće sobe (svaka ima terasu), kupatilo;
II sprat - spavaća soba, kupatilo i lođa od 20m2;
PTK - 40m2 koje je moguće organizovati za razne namene obzirom da je izvedena sva potrebna instalacija (ne ulazi u knjižni deo kvadrature ali je pripremljena sva dokumentacija za ozakonjenje).

Grejanje i hlađenje je izvedeno preko toplotnih pumpi, i postoji mogućnost priključka na gas i izvod se nalazi u dvorištu objekta.

Kuća je uknjižena na 156m2, garaža na 18m2 i plac na 150m2.

Agencijska provizija 2%.

Agent Slavoljub Saša Dinčić: 060/35-35-567 (licenca br. 2912)






0/1000