pregled nekretnine ID: 362947
prodaja

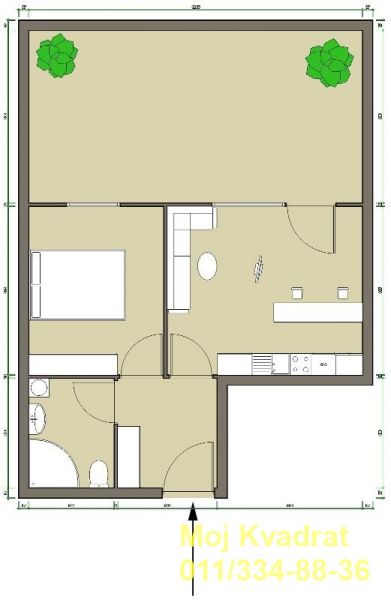
57m² 123.000€
Beograd, Zvezdara, Olimp, Matice srpske

Objavljen: 27.09.2025. / Izmenjen: 27.09.2025.


Tip: stan

Cena: 123000.00 EUR

Površina: 57.00 m2

Grad: Beograd

Opština: Zvezdara

Deo: Olimp

Ulica: Matice srpske

Soba: 1.5

Godina izgradnje: 2018

Prijavi problem  |  Pošalji na e-mail


Kontakt:

Moj Kvadrat doo

011/334 88 36

065/303 94 39

http://www.kvadratnekretnine.com

Opis:

  • Telefon
  • Lift
  • Centralno grejanje
  • Terasa
  • Interfon

Zvezdara, Olimp - Matice srpske

1.5, 57m2 (terasa 22m2), VPR/5, CG, lift, telefon, interfon

U ponudi odlično pozicioniran, prazan jednoiposoban stan, orijentisan ka dvorištu.

Pogodan je za invalide i starije osobe, jer zgrada poseduje rampu. U zgradi je prodavnica, a ispred same zgrade stanica gradskog prevoza.

Pogodan je kako za život, tako i za izdavanje, bilo kao stan ili kao poslovni prostor.

Samo za keš kupce! Useljiv odmah!

Uknjižen na 35m2 korisne površine.

Agencijska provizija 2%

Agent: Igor Bambić 063/20-99-33 (licenca br.403)






0/1000