pregled nekretnine ID: 363027
prodaja

147m² 415.000€
Beograd, Voždovac, Trošarina, Save Maškovića

Objavljen: 01.10.2025. / Izmenjen: 01.10.2025.


Tip: stan

Cena: 415000.00 EUR

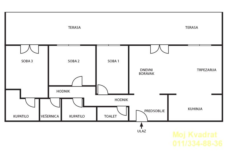
Površina: 147.00 m2

Grad: Beograd

Opština: Voždovac

Deo: Trošarina

Ulica: Save Maškovića

Sprat: 8

Spratnost: 8

Soba: 4

Godina izgradnje: 2024

Prijavi problem  |  Pošalji na e-mail


Kontakt:

Moj kvadrat doo

011/334 8836

065/3039439

www.kvadratnekretnine.com

Opis:

  • Kablovska
  • Klima
  • Lift
  • Centralno grejanje
  • Kanalizacija
  • Novogradnja
  • Terasa
  • Interfon

Voždovac, Trošarina - Save Maškovića

4.0, 147m2 (velika terasa), 8/8, CG, klima, kablovska, internet, dva lifta, interfon, video nadzor

Prodaje se luksuzan penthaus na osmom spratu novoizgrađenog stambeno-poslovnog kompleksa Park vila residence. Veoma funkcionalan i svetao četvorosoban stan, neuseljavan.

Prostorije: predsoblje, dnevni boravak sa trpezarijom i kuhinjom, tri spavaće sobe, dva hodnika, dva kupatila, gostinjski toalet, vešernica. Na spratu pripadajuća ostava.

Prostrano dvorište samo za stanare zgrade koje podseća na park, sa modernim i bezbednim dečjim igralištem sa zaštitnom gumom i igračkama, dovoljno klupa za odmor i dosta zelenila, kao i ugostiteljskim lokalom u središtu.

Nalazi se na izuzetnoj lokaciji, u blizini svih potrebnih sadržaja: nekoliko fakulteta, osnovne škole, vrtića, Lidla, sportsko-rekreativnog centra, Banjičke šume, više linija gradskog prevoza...

Mogućnost kupovine dva garažna mesta po ceni od 25.000 eura za jedno.

Građevinska dozvola.

Agent Ana Kitanovski: 062/371-987 (licenca br.3454)






0/1000