pregled nekretnine ID: 365386
prodaja

156m² 600.000€
Beograd, Stari grad, Centar (Stari grad), Kosovska

Objavljen: 15.12.2025. / Izmenjen: 15.12.2025.


Tip: stan

Cena: 600000.00 EUR

Površina: 156.00 m2

Grad: Beograd

Opština: Stari grad

Deo: Centar (Stari grad)

Ulica: Kosovska

Sprat: 8

Spratnost: 8

Soba: 5

Godina izgradnje: 1963

Prijavi problem  |  Pošalji na e-mail


Kontakt:

Moj kvadrat doo

011/334-88-36

065/3039439

www.kvadratnekretnine.com

Opis:

  • Uknjiženo
  • Useljivo
  • Telefon
  • Lift
  • Centralno grejanje
  • Kanalizacija
  • Terasa
  • Interfon

Stari grad, Skupština - Kosovska

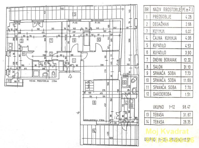
5.0, 156m2 (terasa 58m2), CG, lift, 8/8, telefon, interfon

Izuzetan, funkcionalan i autentičan stan sa dva ulaza, na osmom spratu u zgradi od osam spatova. Ima tri spavaće sobe, dve dnevne sobe i dva kupatila.

Stan je za kompletno renoviranje.

Uknjižen na 98m2 korisne površine, mereno sa terasom ima 156m2.

Agencijska provizija 2%

Agent: Gordana Milošević 069/129-79-72 (licenca br.1763)






0/1000