pregled nekretnine ID: 365388
prodaja
87m² 147.900€
Beograd, Zvezdara, Predraga Tomića
Objavljen: 15.12.2025. / Izmenjen:
15.12.2025.
Tip: stan
Cena: 147900.00 EUR
Površina: 87.00 m2
Grad: Beograd
Opština: Zvezdara
Ulica: Predraga Tomića
Sprat: 1
Spratnost: 3
Soba: 3
Godina izgradnje: 2023
Opis:
- Klima
- Lift
- Parking
- Kanalizacija
- Novogradnja
- Terasa
- Interfon
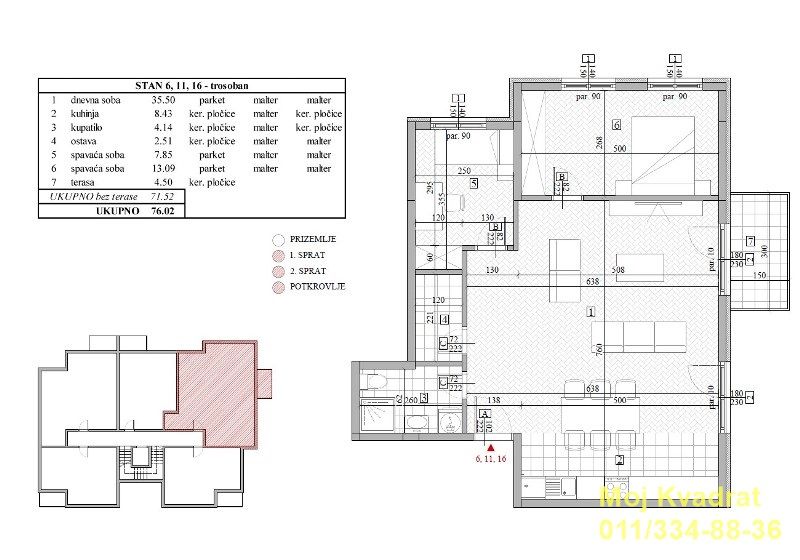
Zvezdara, Cvetanova ćuprija - Predraga Tomića
3.0, 87m2 (terasa 4m2), 1/3, podno grejanje, lift, inverter klima, interfon, parking, garaža
U ponudi stan u novogradnji, u lepoj i funkcionalnoj zgradi sa tri sprata. U istoj zgradi prodaju se i ostali stanovi kako iste, tako i različite kvadrature i strukture.
Izolacija ce biti stiropor desetka, troslojna stakla, PVC stolarija, španska keramika, hrastov parket, inverter klima i podno grejanje na sopstveni kotao.
Postoji mogućnost kupovine garažnog mesta i garaže.
Po projektu, izgrađenost će preći 60% gradnje krajem septembra i početkom oktobra, i tada se već može uzeti kredit.
Očekivani završetak radova je april - maj 2024. godine.
U cenu stana je uračunat PDV.
Upotrebna dozvola.
Agencijska provizija 2%.
Agent: Mirela Perović 060/72-77-557 (licenca br.2566)