pregled nekretnine ID: 365506
prodaja

84m² 235.000€
Beograd, Čukarica, Julino brdo, Poručnika Spasića i Mašere

Objavljen: 18.12.2025. / Izmenjen: 18.12.2025.


Tip: stan

Cena: 235000.00 EUR

Površina: 84.00 m2

Grad: Beograd

Opština: Čukarica

Deo: Julino brdo

Ulica: Poručnika Spasića i Mašere

Sprat: 4

Spratnost: 10

Soba: 3

Godina izgradnje: 1980

Prijavi problem  |  Pošalji na e-mail


Kontakt:

Moj Kvadrat doo

011/334 88 36

065/303 94 39

http://www.kvadratnekretnine.com

Opis:

  • Uknjiženo
  • Telefon
  • Lift
  • Parking
  • Centralno grejanje
  • Kanalizacija
  • Terasa
  • Interfon
  • Podrum

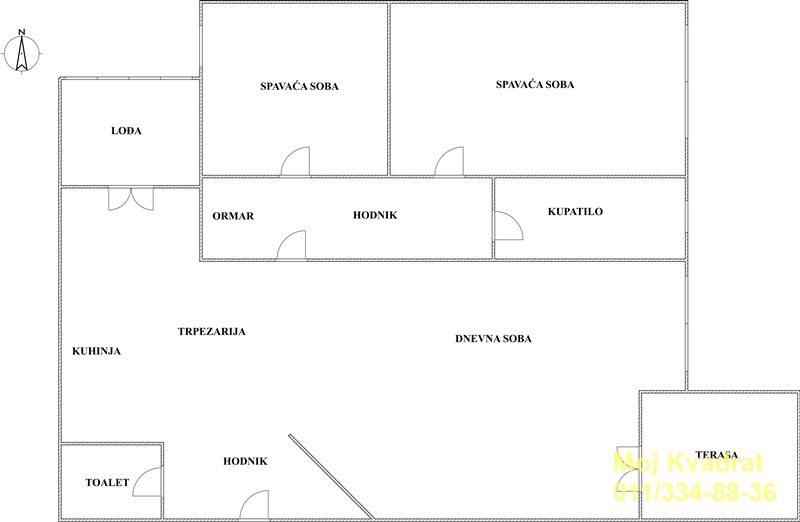
Čukarica, Julino brdo - Poručnika Spasića i Mašere

3.0, 84m2 (terasa + lođa 7m2), 4/10, CG, dva lifta, telefon, interfon, podrum, parking

U ponudi je prostran i funkcionalan trosoban stan na odličnoj lokaciji na Julinom brdu. Nalazi se u uredno održavanoj zgradi sa dva lifta.

Dobar i praktičan raspored prostorija omogućava maksimalno korišćenje prostora. Grejanje je centralno što obezbeđuje stabilne i komforne uslove tokom cele grejne sezone.

Lokacija je jedna od glavnih prednosti - miran i porodičan kraj, okružen zelenilom, a u neposrednoj blizini se nalaze škole, vrtići, prodavnice, pijaca, dom zdravlja, stanice gradskog prevoza, sa odličnom povezanošću sa ostalim delovima grada. Trgovačka ulica na svega par minuta udaljenosti.

Stan je pogodan za porodično stanovanje ili kao investicija.

Uknjižen na 77m2 građevinske i 71m2 korisne površine.

Agencijska provizija 2%

Agent: Đorđe Ćirković 063/17-67-905 (licenca br. 4819)






0/1000