pregled nekretnine ID: 365621
prodaja

74m² 210.000€
Beograd, Čukarica, Čukarička padina, Strugarska

Objavljen: 22.12.2025. / Izmenjen: 22.12.2025.


Tip: stan

Cena: 210000.00 EUR

Površina: 74.00 m2

Grad: Beograd

Opština: Čukarica

Deo: Čukarička padina

Ulica: Strugarska

Sprat: 3

Spratnost: 7

Soba: 2.5

Godina izgradnje: 1980

Prijavi problem  |  Pošalji na e-mail


Kontakt:

Moj Kvadrat doo

011/334 88 36

065/303 94 39

http://www.kvadratnekretnine.com

Opis:

  • Uknjiženo
  • Klima
  • Lift
  • Centralno grejanje
  • Kanalizacija
  • Terasa
  • Interfon
  • Podrum

Čukarica, Čukarička padina - Strugarska

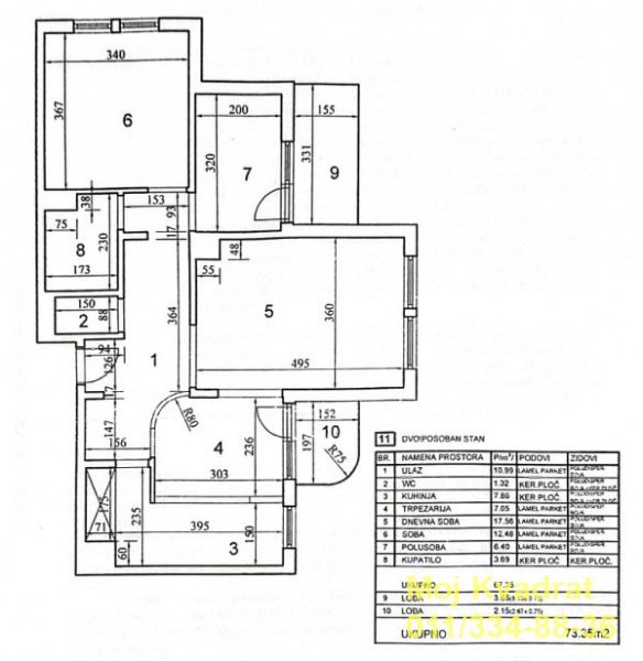
2.5, 74m2 (dve lođe 7m2), 3/7, CG, inverter klime, lift, interfon, podrum

U ponudi izvorno dvoiposoban stan na trećem spratu od ukupno sedam na odličnoj lokaciji u zgradi iz 1980-ih godina sa liftom, centralnim grejanjem i urednim ulazom. Stan je izuzetno svetao, dvostrano orijentisan i sa odličnim rasporedom prostorija.

Stan je korišćen kao kancelarijski prostor i adaptiran je tako da ima četiri odvojene kancelarije (prostorije), predsoblje, kuhinju, dve lođe, kupatilo i toalet.

Zamenjena je stolarija sa kvalitetnim PVC profilima (sa roletnama), kao i sigurnosna vrata. Lamelni parket je prekriven laminatom zbog lakšeg održavanja, ali može da se vrati u pređašnje stanje. Kupatilo i toalet su za sređivanje. Centralno grejanje je odjavljeno , s tim da su vertikale i dalje tople i stan se greje sa inverter klimama. Postoji mogućnost ponovnog priključenja na centralno grejanje.

Odličan za kancelarijski prostor ali i za stambeni (uz minimalne adaptacije).

Uknjižen na 74m2 građevinske i 67m2 korisne površine.

Agencijska provizija 2%

Agent: Jasmina Veljić 063/204-494 (licenca br.959)






0/1000