pregled nekretnine ID: 366226
prodaja

47m² 156.000€
Beograd, Zvezdara, Ledinačka

Objavljen: 16.01.2026. / Izmenjen: 16.01.2026.


Tip: stan

Cena: 156000.00 EUR

Površina: 47.00 m2

Grad: Beograd

Opština: Zvezdara

Ulica: Ledinačka

Sprat: 1

Spratnost: 3

Soba: 2

Godina izgradnje: 1947

Prijavi problem  |  Pošalji na e-mail


Kontakt:

Moj Kvadrat doo

011/334 88 36

065/303 94 39

http://www.kvadratnekretnine.com

Opis:

  • Uknjiženo
  • Kanalizacija
  • Interfon

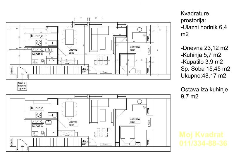
Zvezdara, Severni bulevar - Ledinačka

2.0, 53m2 (galerija 6m2), 1/3, TA, interfon

Na prodaju izuzetan, kompletno i kvalitetno renoviran stan na odličnoj lokaciji. Ima veoma funkcionalan raspored, kao i galeriju od 6m2 koja pruža dodatni prostor, pogodan kao dečja ili radna soba.

Prostorije: donji nivo- ulazni deo, dnevno - trpezarijski deo, spavaća soba, kuhinja, ostava, kupatilo. Na gornjem nivou je prostor za singl krevet i radni sto, sa ormarom.

Nalazi se na na 1. spratu do 3 sprata, u pitanju je mansarda, u mirnoj ulici, u zgradi starije gradnje.

Stan je kompletno opremljen modernim nameštajem i belom tehnikom (sva u garanciji), prodaje se zajedno sa fiksnim elementima nameštaja i tehnike. Prilikom izvođenja radova, pažljivo su birani materijali i rešenja kojima je funkcionalnost upotpunjena.

Grejanje je na TA peći što omogućava potpuno kontrolu potrošnje i niže mesečne troškove.

Zahvaljujući strukturi, kvalitetu opreme i lokaciji, stan je idealan kao investicija, trenutno je pod zakupom, te je moguća kupovina sa postojećim zakupcem, što novom vlasniku obezbeđuje odmah ostvariv prihod.

Bet dodatnih ulaganja - spreman za useljenje ili nastavak izdavanja.

Uknjižen na 47m2, pogodan i za kreditnu kupovinu.

Agencijska provizija 2%

Agent Ana Čortan: 064/13-19-123 (licenca br.6284)






0/1000