pregled nekretnine ID: 368615
prodaja

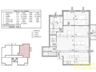
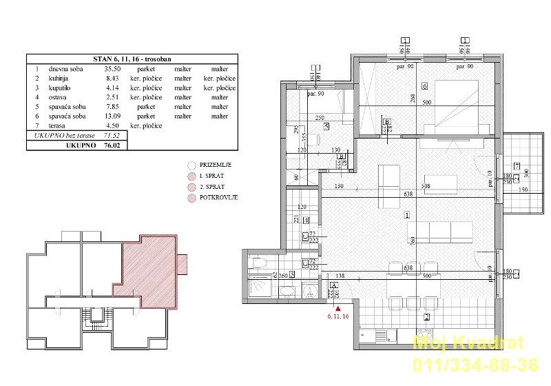
87m² 147.900€
Beograd, Zvezdara, Predraga Tomića

Objavljen: 01.04.2026. / Izmenjen: 01.04.2026.


Tip: stan

Cena: 147900.00 EUR

Površina: 87.00 m2

Grad: Beograd

Opština: Zvezdara

Ulica: Predraga Tomića

Sprat: 1

Spratnost: 3

Soba: 3

Godina izgradnje: 2023

Prijavi problem  |  Pošalji na e-mail


Kontakt:

Moj Kvadrat doo

011/334 88 36

065/303 94 39

http://www.kvadratnekretnine.com

Opis:

  • Klima
  • Lift
  • Parking
  • Kanalizacija
  • Novogradnja
  • Terasa
  • Interfon

Zvezdara, Cvetanova ćuprija - Predraga Tomića

3.0, 87m2 (terasa 4m2), 1/3, podno grejanje, lift, inverter klima, interfon, parking, garaža

U ponudi stan u novogradnji, u lepoj i funkcionalnoj zgradi sa tri sprata. U istoj zgradi prodaju se i ostali stanovi kako iste, tako i različite kvadrature i strukture.

Izolacija ce biti stiropor desetka, troslojna stakla, PVC stolarija, španska keramika, hrastov parket, inverter klima i podno grejanje na sopstveni kotao.

Postoji mogućnost kupovine garažnog mesta i garaže.

Po projektu, izgrađenost će preći 60% gradnje krajem septembra i početkom oktobra, i tada se već može uzeti kredit.
Očekivani završetak radova je april - maj 2024. godine.

U cenu stana je uračunat PDV.

Upotrebna dozvola.

Agencijska provizija 2%.

Agent: Mirela Perović 060/72-77-557 (licenca br.2566)






0/1000