pregled nekretnine ID: 363685
prodaja

33m² 95.800€
Zlatibor, Ćaldov put

Objavljen: 21.10.2025. / Izmenjen: 21.10.2025.


Tip: stan

Cena: 95800.00 EUR

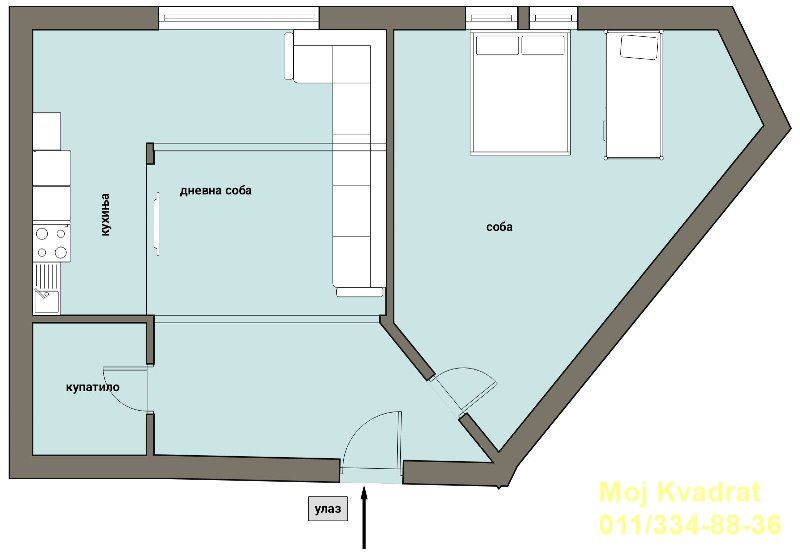
Površina: 33.00 m2

Grad: Zlatibor

Opština: Zlatibor

Ulica: Ćaldov put

Sprat: 4

Spratnost: 4

Soba: 1.5

Prijavi problem  |  Pošalji na e-mail


Kontakt:

Moj Kvadrat doo

011/334 88 36

065/303 94 39

http://www.kvadratnekretnine.com

Opis:

  • Uknjiženo
  • Telefon
  • Kablovska
  • Internet
  • Klima
  • Parking
  • Interfon

Zlatibor, Čajetina - Ćaldov put

1.5, 33m2, 4/4, podno grejanje na struju, klima, telefon, interfon, video nadzor, internet, KATV, parking

Na 500m od centra Zlatibora, u novoizgrađenom kompleksu „The Forest“, u ponudi je apartman koji se sastoji od: ulaznog dela, otvorenog koncepta dnevnog boravka sa kuhinjom i trpezarijom, odvojene spavaće sobe i kupatila.

Zagrevanje apartmana je odrađeno sistemom elektro-podnog grejanja sa posebnom regulacijom u svakoj prostoriji preko daljinskog upravljanja firme - "Roveks-inženjering". Opremljen je vrlo kvalitetnim materijalima i prodaje se namešten sa svom tehnikom.

U samom objektu postoji Welness centar (bazen, jacuzzi, sauna i parno kupatilo, SPA tretmani, slana soba) i restoran. Za vlasnike apartmana postoji pogodnost za korišćenje navedenih sadržaja.

U cenu stana je uračunato i pripadajuće parking mesto.

Apartman se prodaje kompletno namešten i opremljen.

Odlična ponuda za klijente koji vole ovu destinaciju ili kao investicija.

Uknjižen 1/1 na 33m2 korisne površine.

Agencijska provizija 2%

Agent: Slavoljub Saša Dinčić 060/35-35-567 (licenca br.2912)






0/1000