pregled nekretnine ID: 368143
prodaja

51m² 219.000€
Beograd, Savski Venac, Slavija, Deligradska

Objavljen: 18.03.2026. / Izmenjen: 18.03.2026.


Tip: stan

Cena: 219000.00 EUR

Površina: 51.00 m2

Grad: Beograd

Opština: Savski Venac

Deo: Slavija

Ulica: Deligradska

Sprat: 5

Spratnost: 8

Soba: 2

Prijavi problem  |  Pošalji na e-mail


Kontakt:

Moj Kvadrat doo

011/334 88 36

065/303 94 39

http://www.kvadratnekretnine.com

Opis:

  • Uknjiženo
  • Telefon
  • Lift
  • Kanalizacija
  • Interfon

Savski venac, Slavija - Deligradska

2.0, 51m2, francuski balkon, 5/8, grejanje na struju, lift, telefon, interfon

Prodaje se funkcionalan, dvosoban stan površine 51m2, na petom spratu zgrade sa liftom, u jednoj od najtraženijih lokacija u Beogradu – Slavija, Deligradska ulica. Stan se nalazi u stambenoj zgradi, koja je pozicionirana u minom delu ulice, sa dobrim susedsvom i urednim ulazom.

Stan je u izvornom stanju, što pruža idealnu priliku da novi vlasnik prostor prilagodi sopstvenim potrebama i estetskim afinitetima.

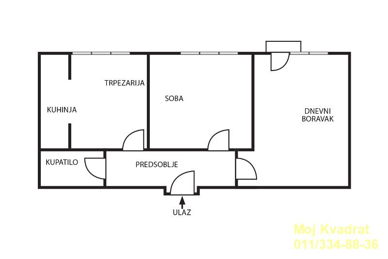
Struktura stana: dnevna soba, spavaća soba, kuhinja sa trpezarijom, kupatilo, hodnik.

Grejanje je na struju, što omogućava kontrolu troškova i nezavisnost. Stanu pripada i podrumska prostorija, pogodna za ostavu ili dodatni skladišni prostor.

Ova prestižna lokacija je u neposrednoj blizini Slavije, Vračara, klinika, fakulteta, prevoza, škola, prodavnica, kulturnih sadržaja i svih ostalih sadržaja neophodnih za udoban gradski život. Lokacija stana je idealno saobraćajno povezana sa svim dalovima grada.

Odlična prilika za stanovanje, kao i za investiciono ulaganje.

Uknjižen bez upisane kvadrature. Stvarna merena kvadratura iznosi 51m2.

Agencijska provizija 2%.






0/1000